Bretagne Service Dentaire :
Architecte en cabinet dentaire à la Mézière, près de Rennes : agencement et aménagement
Avec notre double casquette d’architecte et de distributeur de matériel dentaire, nous assurons la création, la rénovation et l’agencement sur mesure de votre espace, tout en vous proposant une large gamme d’articles dentaires professionnels adaptés à vos besoins.
Julie, notre dessinatrice, est à votre écoute pour vos projets de conception et de rénovation, incluant la fourniture d’équipement dentaire.
Confiez l’aménagement ou la rénovation complète de votre cabinet dentaire à votre fournisseur d’équipement dentaire proche de Rennes, Le Mans, Brest, Quimper, Lorient, Saint-Brieuc, Vannes, Laval, Cherbourg-en-Cotentin et Saint-Malo et profitez d’un matériel de soin optimal.
Présentation de votre projet d’ameublement en 4 étapes
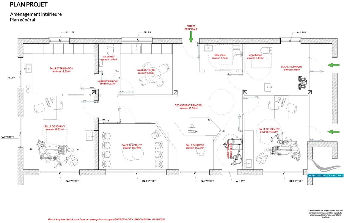
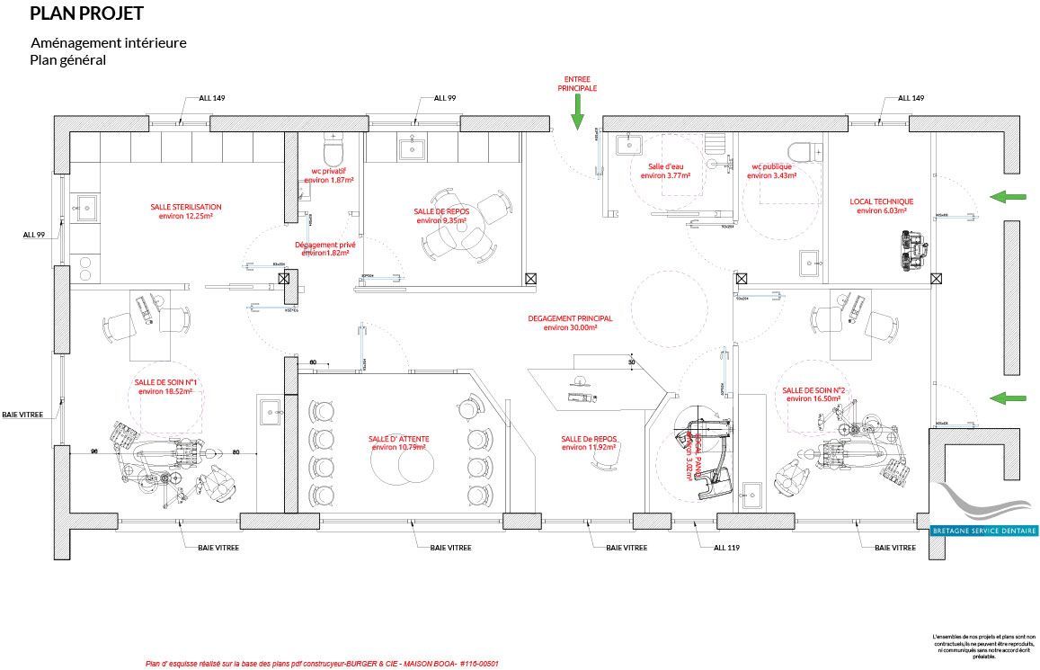
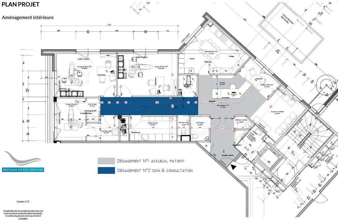
Avant toute validation, notre architecte réalise un dossier complet pour détailler la conception de votre cabinet, avec des éléments fournis par notre magasin d’articles dentaires.
Localisation du projet
L’emplacement du cabinet est géolocalisé avec un plan détaillé des bâtiments alentour.
Exposition du projet
Les parties visibles de l’extérieur sont répertoriées pour noter les zones à privilégier pour l’aménagement.
Moodboard
Les ambiances de couleur et types de matériaux sont choisies avec soin pour retranscrire une atmosphère accueillante.
Esquisse
Un plan et des vues en 3D sont réalisés pour vous projeter dans la réalisation finale.










